Projects in Planning

The following projects are currently in development and represent concepts being explored by the University. At this stage, the following projects have not received formal approval or funding and are being reviewed for feasibility, alignment with institutional priorities, and potential future implementation. As planning progresses, details related to scope, timing, and resources may evolve based on further evaluation and stakeholder input.
Roofing & Waterproofing System Replacement is a multi-building roof replacement initiative to address drainage and waterproofing issues, improve interior environmental conditions, strengthen operational resilience, and enhance energy efficiency across critical academic facilities. The roofs total approximately 180,000sf over seven (7) core academic facilities. These roofs have been in service between 1973-1983 and 2011 for the Campus Center. Since then, repairs and minor replacements have taken place to maintain structural integrity and prolong the life expectancy of each. Continuous leaks affecting adverse environmental conditions and the loss of material categorizes these roofs as a Priority 1 deferred maintenance project. The scope includes:
- Removal and replacement of ballast, roofing material, and insulation necessary to expose the roof deck for structural evaluation.
- Repair the roof deck as needed and install the new materials necessary to eliminate ponding and complete the project.

Campus Emergency Technology & Fire Alarm System Replacement is the replacement of the 55-year-old fire alarm/life safety system in critical academic facilities. This project will modernize life-safety infrastructure, comply with regulatory codes, and integrate a new communications platform to support campus-wide emergency response. This project will result in a complete tear down and replacement of the fire alarm system (smoke detectors, heat detectors, flam detectors, pull stations, control panels, sirens/horns, strobes/lights, sprinkler systems/devices, and door release mechanisms) as well as a new communication platform that will audibly alert students, faculty, staff, and visitors alike of campus emergencies and their locations. All these components will work together to form one comprehensive emergency response system in compliance with the applicable NFPA and IBC Codes.

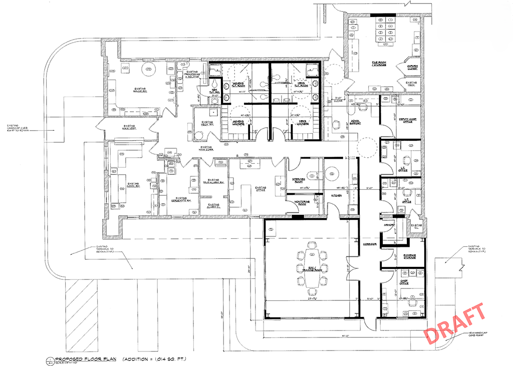
Stockton University’s Galloway campus is serviced by the Stockton University Police Department (SUPD) comprised of sworn police officers, dispatchers, security officers, emergency management personnel, fire safety personnel, and administrative support. The current SUPD facility was built in 1986, is undersized and in need of major renovations to comply with current standards for police and security operations, plus additional expanded facilities to support campus emergency operations and emergency healthcare responders. SUPD does not currently have a facility dedicated to Emergency Management Operations, including the necessary communication and related emergency management equipment.

The community center pavilion will develop Stockton University’s North Campus Complex (NCC) into a hub for local community to gather, learn, play, and grow. Community members from the University, Galloway Township and Atlantic County will have access to the pavilion promoting the health, well-being, and educational and community empowerment. Stockton’s NCC is 135-acres with community space for outdoor events, recreation fields, hiking and running trails, baseball/softball fields, tennis courts, turf fields for soccer/lacrosse/field hockey, paths for cross country meets. The project will allow for expanded programs such as concerts, a community garden, outdoor wellness events such as Tai Chi and meditation. Utilization and access to the recreational facilities include the University community, area middle and high schools, community groups, youth organizations, and the community at large. Because there is no water and sewer service in the NCC area, the University has been unable to establish fixed restrooms, or covered shelter area. The project includes the construction of a septic system and well to replace the current port-a-potties with much-needed restrooms. This project will greatly increase the community usage of the NCC.



